1535 Warm Springs DriveMissouri City, TX 77459
Due to the health concerns created by Coronavirus we are offering personal 1-1 online video walkthough tours where possible.




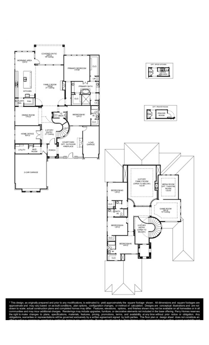
Courtyard leads to welcoming front porch with a two-story entry. Home office with French doors and a formal dining room frame the entry. Generous family room with 21-foot ceiling, a wood mantel fireplace, and a wall of windows. Island kitchen with built-in seating space, double wall oven, a 6-burner gas range top, walk-in pantry and butler's pantry that leads to the formal dining room. Morning area just off the kitchen with a wall of windows. Primary suite features a large wall of windows. Primary bathroom offers dual vanities, a freestanding tub, separate glass enclosed shower, a linen closet and a long walk-in closet. Second floor hosts a large game room, media room, guest suite with a walk-in closet and full bathroom and secondary bedrooms. An additional guest suite on the first floor. Covered backyard patio. Utility room and mud room. Three-car split garage.
| 3 days ago | Listing updated with changes from the MLS® | |
| 3 days ago | Price changed to $949,900 | |
| 3 months ago | Listing first seen on site |
IDX information is provided exclusively for consumers’ personal, non-commercial use. It may not be used for any purpose other than to identify prospective properties consumers may be interested in purchasing. This data is deemed reliable but is not guaranteed accurate by the MLS.
Data provided by HAR.com © 2026. All information provided should be independently verified.

Did you know? You can invite friends and family to your search. They can join your search, rate and discuss listings with you.