Save
Ask
Tour
Hide
$499,000
254 Days On Site
910 Fairmont ParkwayPasadena, TX 77504
For Sale|Land|Active
Subdivision:
Highland Acres
County:
Harris
Due to the health concerns created by Coronavirus we are offering personal 1-1 online video walkthough tours where possible.


Save
Ask
Tour
Hide
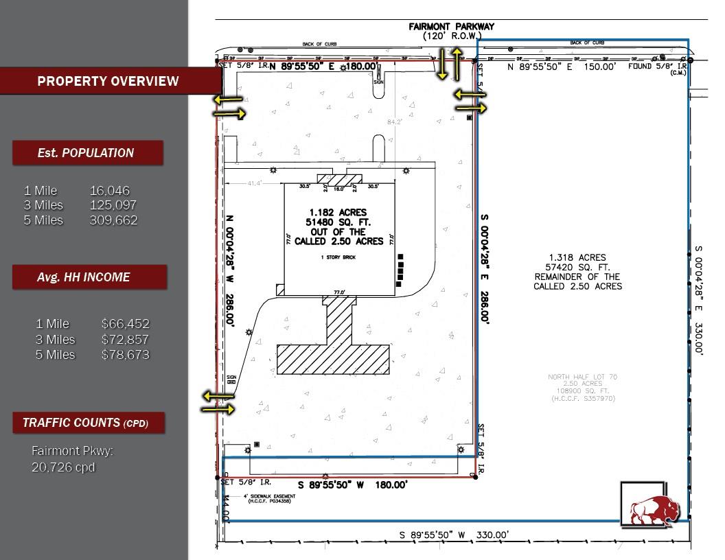
Cleared ±1.31 acres with 150 feet of Fairmont Parkway frontage and cross access to the adjacent property, allowing access to Fox Meadow Lane. Pasadena has no city zoning, making the site suitable for QSR, auto service, medical, office, or retail. Currently offered for ground lease or sale in a high-visibility corridor near major employers in petrochemical, manufacturing, healthcare, and aerospace.
Save
Ask
Tour
Hide
Listing Snapshot
Price
$499,000
Days On Site
254 Days
Bedrooms
N/A
Inside Area (SqFt)
N/A
Total Baths
N/A
Full Baths
N/A
Partial Baths
N/A
Lot Size
1.318 Acres
Year Built
N/A
MLS® Number
64044821
Status
Active
Property Tax
$6,790
HOA/Condo/Coop Fees
N/A
Sq Ft Source
N/A
Friends & Family
Recent Activity
| 3 months ago | Listing updated with changes from the MLS® | |
| 4 months ago | Price changed to $499,000 | |
| 8 months ago | Listing first seen on site |
General Features
Acres
1.318
Additional Property Use
Other
Disclosures
Owner/Agent
Sewer
Public Sewer
Water Source
Public
Save
Ask
Tour
Hide
Exterior Features
Lot Features
Interior LotOtherCleared
Community Features
MLS Area
6
School District
41 - Pasadena
Schools
School District
41 - Pasadena
Elementary School
Young Elementary School (Pasadena)
Middle School
Milstead Middle School
High School
South Houston High School
Listing courtesy of Buffalo Real Estate Partners [email protected]
IDX information is provided exclusively for consumers’ personal, non-commercial use. It may not be used for any purpose other than to identify prospective properties consumers may be interested in purchasing. This data is deemed reliable but is not guaranteed accurate by the MLS.
Data provided by HAR.com © 2026. All information provided should be independently verified.
IDX information is provided exclusively for consumers’ personal, non-commercial use. It may not be used for any purpose other than to identify prospective properties consumers may be interested in purchasing. This data is deemed reliable but is not guaranteed accurate by the MLS.
Data provided by HAR.com © 2026. All information provided should be independently verified.
Neighborhood & Commute
Source: Walkscore
Save
Ask
Tour
Hide

Did you know? You can invite friends and family to your search. They can join your search, rate and discuss listings with you.