10102 Drifting Wind LnMissouri City, TX 77459
Due to the health concerns created by Coronavirus we are offering personal 1-1 online video walkthough tours where possible.




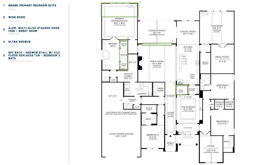
MLS# 96742307 - Built by Toll Brothers - Ready Now! ~ Welcome to this stunning, expansive one-story home, offering 4 spacious bedrooms, 4.5 luxurious baths, and a 3-car garage, all within a generous 4,154 square feet of living space. From the moment you approach the home, the large front porch invites you to enter and discover an impressive open foyer with soaring 14-foot tray ceilings that create a grand first impression. Inside, the home boasts both formal and casual dining areas, an elegant office, a versatile flex room, a state-of-the-art media room, and an upgraded wine room with custom shelving and wine storage, perfect for the connoisseur. Whether you're entertaining guests or relaxing with family, this space is sure to impress. The great room, flex room, and covered patio are accentuated by majestic cathedral ceilings, offering a sense of openness and airiness throughout the entire home. The gourmet kitchen is a true chefs dream.
| 11 hours ago | Listing updated with changes from the MLS® | |
| 2 weeks ago | Listing first seen on site |
IDX information is provided exclusively for consumers’ personal, non-commercial use. It may not be used for any purpose other than to identify prospective properties consumers may be interested in purchasing. This data is deemed reliable but is not guaranteed accurate by the MLS.
Data provided by HAR.com © 2026. All information provided should be independently verified.

Did you know? You can invite friends and family to your search. They can join your search, rate and discuss listings with you.